본문 바로가기
주메뉴 바로가기
ABOUT
회사소개
인사말
조직도
연혁
PROJECT
NEWS
공지사항
사내 게시판
내부 게시판
CONTACT
채용절차
찾아오시는 길
PROJECT
보다 더 나은삶과 VISION을 제공하고 건축의 미를 창출하는 기업
PROJECT
ABOUT
PROJECT
NEWS
CONTACT
PROJECT
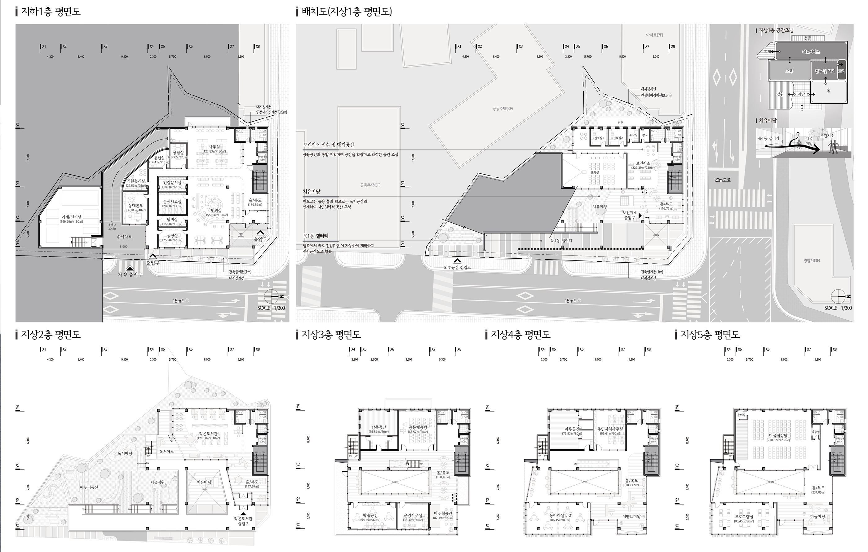
중랑구 묵 1동 복합청사
사업명
중랑구 묵 1동 복합청사
용적률
168.40%
위치
서울특별시 중랑구 묵동 120-2외 1필지
규모
지하 2층, 지상 5층
대지면적
1,290.00m²
세대수
건축면적
539.91m²
용도
공공시설(공공청사)
연면적
3,902.81m²
연도
2025